Une Extension en Ossature Bois à Réaliser en 2025 près de Nîmes

UNIVERS BOIS : Une Extension en Ossature Bois à Réaliser en 2025 près de Nîmes

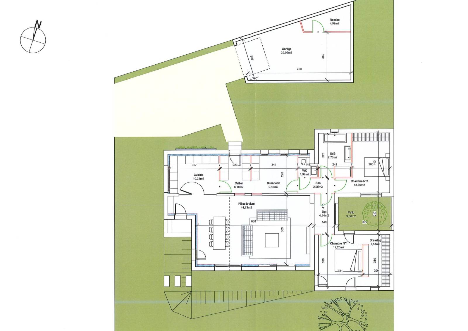
En 2025, UNIVERS BOIS réalisera une nouvelle extension en ossature bois dans la région de Nîmes. Ce projet reflète notre expertise dans la conception et la construction d’espaces modernes, esthétiques et respectueux de l’environnement, adaptés aux besoins de nos clients.


Un Projet sur Mesure : Extension et Rénovation

Ce chantier comprend la création d’une extension en ossature bois et la rénovation d’un garage existant. Voici les principaux aspects du projet :

1. Une Structure Robuste et Performante
  • Mise en place de poutres métalliques thermolaquées pour assurer une base solide.
  • Installation d’un plancher en OSB avec une isolation en ouate de cellulose soufflée pour un confort thermique optimal.
2. Des Murs Préfabriqués en Atelier
  • Les murs en ossature bois, renforcés par un voile OSB 12 mm, sont conçus et assemblés en atelier pour une installation rapide et précise sur site.
  • L’isolation est assurée par de la laine de bois et un frein vapeur, garantissant étanchéité et performance énergétique.
3. Une Façade Élégante et Fonctionnelle
  • Ajout d’un pare-pluie et de panneaux en fibre de bois, suivi d’un enduit taloché fin pour une finition esthétique et durable.
  • Les menuiseries et appuis en tôle personnalisée s’intègrent harmonieusement au design global.
4. Une Toiture Durable et Moderne
  • Installation d’une membrane PVC pour une étanchéité parfaite, complétée par des systèmes d’évacuation des eaux pluviales et une finition en couvertine en tôle au design personnalisable.
5. Rénovation du Garage

Le garage existant sera rénové avec les mêmes standards de qualité que l’extension, utilisant des matériaux performants pour harmoniser l’ensemble de la structure.


Un Engagement en Faveur de la Durabilité

Avec ce projet, UNIVERS BOIS démontre son engagement envers des solutions respectueuses de l’environnement. L’utilisation de matériaux naturels, comme le bois traité et la fibre de bois, garantit une construction durable, tout en optimisant les performances énergétiques.


Pourquoi Choisir UNIVERS BOIS pour Vos Projets ?

  • Une expertise locale : Basés à Montpellier, nous connaissons les particularités des constructions de la région.
  • Un accompagnement personnalisé : De la conception à la réalisation, nous adaptons chaque projet à vos besoins.
  • Des matériaux de qualité : Nous utilisons des produits certifiés et respectueux de l’environnement.
  • Une garantie décennale : Pour une sérénité totale et un investissement durable.

Réalisez Vos Projets avec UNIVERS BOIS

Vous souhaitez agrandir ou rénover votre maison ? Faites appel à notre équipe pour transformer vos idées en réalité. Que ce soit pour une extension, une surélévation ou un espace dédié, UNIVERS BOIS est là pour vous accompagner.

Nous écrire
Les champs indiqués par un astérisque (*) sont obligatoires
Découvrez ...
Des Extensions en Ossature Bois pour Sublimer Votre Maison à Montpellier et ses Environs

Des Extensions en Ossature Bois pour Sublimer Votre Maison à Montpellier et ses Environs

Quelques extensions en ossature bois réalisées par notre entreprise UNIVERS BOIS
Espace de Vie Agrandi par Extension

Devis Extension Maison avec UNIVERS BOIS : Votre Projet, Notre Expertise

L'extension de votre maison est une décision majeure qui peut transformer votre espace de vie et améliorer votre qualité de vie. Que ce soit pour accueillir une nouvelle chambre, un bureau ou un espace de loisirs, une extension bien pensée peut apporter confort et fonctionnalité à votre habitat.
estimation surélévation en ossature bois 50 m² montpellier

Estimation des Coûts pour une Surélévation en Ossature Bois de 50 m² à Montpellier

Que vous souhaitiez agrandir votre maison ou créer une nouvelle pièce, notre équipe d'experts est là pour vous accompagner. Voici un aperçu des coûts estimés pour une surélévation de 50 m² dans la région de Montpellier.

Confiez nous votre projet

Du rêve à la réalité
Savoir-faire
Savoir-faire
Expérience
Expérience
Réalisation rapide
Réalisation rapide
Ecoute / Accompagnement
Ecoute / Accompagnement
 Clés en mains
Clés en mains